
Komplektuojančios dalys židiniams
Paprastas ir efektyvus šilumos sulaikymo būdas. Židinio ugniakure skleidžiama šiluma sukaupiama specialaus liejinio žieduose, todėl patalpose ilgą laiką išlieka šilta, patalpos neperkaitinamos, šiluma sklinda tolygiai.
Ypatumai:
• paprastas surinkimas – akumuliaciniai žiedai montuojami tiesiai ant dūmų išmetimo vamzdžio;
• labai efektyvus šilumos perdavimas iš dūmų į akumuliacinius žiedus;
• galimybė tiesiogiai prijungti dūmtakį / alkūnę prie paskutiniojo elemento;
• akumuliaciniai žiedai iškaitinami esant aukštesnei nei 1000°C temperatūrai – sušilę jie neskleidžia blogo kvapo!
• Ketaus elementai užtikrina ilgaamžiškumą.
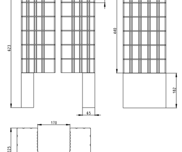
Vieno žiedo svoris - 38 kg, aukštis 77 mm.
Tinka ugniakurams, kurių dūmtraukio skersmuo 200 mm.






Romotop akumuliacija 6 žiedų komplektas Mammoth
Thermobox šilumos kaupimo sistemos komplektas. Prekės kodas: Z9SPA-1003423
Židinio kūrenimo metu, stipriai suspausta terminė masė - Magnetherm S, sukaupia savyje šilumą iš kylančių dūmų. Kai židinys jau užgesęs, ši masė lėtai atidavinėja šilumą patalpai. Dėl savo kompaktiškų matmenų Thermobox sistema neužima daug vietos, yra greitai sumontuojama, ir alternatyva šilumos kaupimo žiedams. Privalumai: galimybė prijungti prie 40 SPARTHERM modelių; sukauptą šilumą spinduliuoja 7,5 val.; nenaudoja papildomos energijos; neteršia aplinkos; prieinama kaina; paprastas ir greitas sumontavimas. Kaupiklis komplektuojamas kartu su šilumą kaupiančiomis granulėmis.


Stiklo valymo priemonė 500ml Prekės kodas: Z9ALY-EMA
Ypatumai: Efektyviai valo nuodėgas, riebalus, kitus stiprius teršalus nuo viryklių, grilių, orkaičių, rūkymo kamerų, židinių, kepimo formų, puodų, keptuvių. Naudojamas buityje, maisto pramonės ir viešojo maitinimo įmonėse. Naudojimo būdas:
Prieš vartojimą valiklį suplakti taroje, užpurkšti ant valomo paviršiaus ir palaikyti 5–10 min., tada nuplauti. Stipriai užterštus paviršius išteptus valikliu palikti 2 val. (prireikus patrinti kempine arba šepečiu) ir nuplauti vandeniu.


Kuras biožidiniams, lauko židiniams, 1l. Prekės kodas: Z9KNS-5888
„Fanola®“ yra biologiškai švarus, ekologiškas kuras, etilo alkoholio pagrindu. Etanolis yra augalinės kilmės produktas. Degdamas jis išgaruoja, neskleidžia jokio kvapo, dūmų, suodžių. Šis biožidinių kuras degdamas išskiria panašų anglies dioksido kiekį, kiek išskirtų kvėpuojantis žmogus.
Fanola® degimo procesas apibūdinamas kaip „švarus“, nes vieninteliai šalutiniai degimo produktai yra: šiluma, CO2 ir vandens garai.
Po serijos visų bandymų „Fanola®“ buvo suteiktas „EcoFuel“ sertifikatas, įrodantis aukščiausius kokybės standartus atsižvelgiant į žmogų ir aplinką. Tai leido biožidiniams įgyti pasitikėjimą ir populiarumą tarp klientų.
„Fanola® Biofuel“ nėra maisto produktas. Prieš naudodami gaminį, atidžiai perskaitykite naudojimo instrukciją. Denatūruotas etanolis susideda iš organinės medžiagos ir turi neutralų poveikį aplinkai.


Kuras biožidiniams, lauko židiniams, 5l. Prekės kodas: Z9KNS-588
„Fanola®“ yra biologiškai švarus, ekologiškas kuras, etilo alkoholio pagrindu. Etanolis yra augalinės kilmės produktas. Degdamas jis išgaruoja, neskleidžia jokio kvapo, dūmų, suodžių. Šis biožidinių kuras degdamas išskiria panašų anglies dioksido kiekį, kiek išskirtų kvėpuojantis žmogus.
Fanola® degimo procesas apibūdinamas kaip „švarus“, nes vieninteliai šalutiniai degimo produktai yra: šiluma, CO2 ir vandens garai.
Po serijos visų bandymų „Fanola®“ buvo suteiktas „EcoFuel“ sertifikatas, įrodantis aukščiausius kokybės standartus atsižvelgiant į žmogų ir aplinką. Tai leido biožidiniams įgyti pasitikėjimą ir populiarumą tarp klientų.
„Fanola® Biofuel“ nėra maisto produktas. Prieš naudodami gaminį, atidžiai perskaitykite naudojimo instrukciją. Denatūruotas etanolis susideda iš organinės medžiagos ir turi neutralų poveikį aplinkai.


Akumuliacijos komplektas Evor, Belo, Belorado, Sor, Lug, Esq, Ovalis krosnelėms. Prekės kodas: Z9ROM-AKKUM01
Specialus akumuliacinių akmenų komplektas, montuojamas virš pakuros, prie dūmtraukio. Aktyvaus kūrenimo metu dūmų šiluma dūmtraukyje yra kaupiama akumuliaciniuose akmenyse, o ne išleidžiama per kaminą. Baigus kūrenti kurą, ši šiluma iki 5,5 valandų yra spinduliuojama į aplinką.
Šis akumuliacijos komplektas tinka Romotop Evora, Belo, Belorado, Soria, Lugo, Esquina, Laredo, Lugano, Ovalis, Palea krosnelėms.






Oro padavimo iš lauko komplektas Nibe Contura krosnelėms. Prekės kodas: Z9NIB-299007
Krosnelė gali būti prijungiama per grindis arba per sieną. Naudojant šią jungtį, užtikrinamas šviežio, prisotinto deguonies oro tiekimas į degimo kamerą, todėl garantuojamas geresnis degimas. Iš krosnelės patalpos oras nėra naudojamas degimui, todėl galite mėgautis gaivesne aplinka. Ši jungtis idealiai pritaikyta Contura krosnelėms, sujungimas yra itin paprastas.




Juodų šamotų komplektas TOP01, I2LG židiniui
Prekės kodas: Z9ROM-I2LGTOP01
Juodos spalvos šamotų komplektas Romotop židiniui I2LG01.
Šamotinės plytos apsaugo degimo kamerą nuo tiesioginės ugnies, sulaiko šilumą pakuroje ir neleidžia jai išsisklaidyti pro korpuso sieneles.




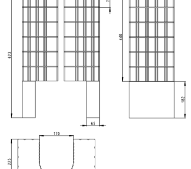
Romotop akumuliacija 5 žiedų komplektas HEAT Mammoth. Prekės kodas: ROMOTOP MAMMOTH akumuliacinių akmenų rinkinys, skirtas židinių ugniakurams, kurių dūmtraukio skersmuo 150 mm.
Ypatumai:
• „Romotop MAMMOTH“ akumuliacinio rinkinio ypatinga šiluminė talpa;
• maksimalus šilumos perdavimas iš išmetamųjų dujų į akumuliaciją;
• šilumos kaupimasis - šildymas net po to, kai ugniakuras baigiamas kūrenti;
• papildyti ar padidinti pastato akumuliacinę galią;
• gamybos metu akumuliaciniai žiedai iškaitinami esant aukštesnei nei 1000°C temperatūrai – sušilę jie neskleidžia blogo kvapo!
• nesudėtingas montavimas;
• specialios šilumai laidžios plokštelės tarp kaupiamosios masės - didelis šilumos kaupimo greitis;
• viršutinio kaupiamojo komplekto svoris 70 kg.




Rėmas 4 dalių, židiniams H2N, HWA2N, HW2N (590x500). Prekės kodas: Z9ROM-H2NRAM06
Apdailos rėmas, tinkantis Romotop ugniakurams H2N, HWA2N, HW2N.




Židinio apdailos rėmas, skirtas kampiniams Romotop HR2SX ir HL2SX ugniakurams.




Rėmas 4S židiniams HR2SV, HL2SV. Prekės kodas: Z9ROM-HR2SVRAM06
Židinio apdailos rėmas, skirtas kampiniams Romotop HR2SV ir HL2SV ugniakurams




Maža malkinė RG1 Romotop krosnelei Esquinna. Prekės kodas: Z9ROM-RG1
Nedidelė malkinė, deranti prie krosnelės Romotop Esquina.




Aukšta malkinė RG2 Romotop krosnelei Esquinna. Prekės kodas: Z9ROM-RG2
Aukšta malkinė, sudaryta iš trijų ertmių malkų laikymui. Puikiai dera prie krosnelės Romotop Esquina.




Plati malkinė RG3 Romotop krosnelei Esquinna. Prekės kodas: Z9ROM-RG3
Neaukšta, plati malkinė. Puikiai dera prie krosnelės Romotop Esquina.




Apdailos rėmas, 3jų pusių, židiniui D2L, DB2L, 60 mm. Prekės kodas: Z9ROM-D2LRAM03
Apdailos rėmas, 3jų pusių, židiniui D2L, DB2L, 25 mm. Prekės kodas: Z9ROM-D2LRAM05
Apdailos rėmas, 4ių pusių, židiniui D2L01, 25 mm. Prekės kodas: Z9ROM-D2LRAM06








Romotop Mammoth akumuliacinis komplektas vienai pusei (žemas). Prekės kodas: Z9ROM-AKKUMKV02
Paprastas ir efektyvus šilumos sulaikymo būdas. Židinio ugniakure skleidžiama šiluma sukaupiama specialaus liejinio plokštėje, todėl patalpose ilgiau išlieka šiltuma, patalpos neperkaitinamos, šiluma sklinda tolygiai.
Plokštės svoris - 46 kg.
Tinka daugumai Romotop Heat ir Dynamic ugniakurams.






Romotop Mammoth akumuliacinių žiedų komplektas HEAT židiniams su pakeliamomis durimis. Prekės kodas: Z9ROM-AKKUMKV04
ROMOTOP MAMMOTH akumuliacinių akmenų rinkinys, skirtas Romotop židinių ugniakurams, kurių dūmtraukio skersmuo 200 mm, o durelės pakeliamos.
Ypatumai:
• „Romotop MAMMOTH“ akumuliacinio rinkinio ypatinga šiluminė talpa;
• maksimalus šilumos perdavimas iš išmetamųjų dujų į akumuliaciją;
• šilumos kaupimasis - šildymas net po to, kai ugniakuras baigiamas kūrenti;
• papildyti ar padidinti pastato akumuliacinę galią;
• gamybos metu akumuliaciniai žiedai iškaitinami esant aukštesnei nei 1000°C temperatūrai – sušilę jie neskleidžia blogo kvapo!
• nesudėtingas montavimas;
• specialios šilumai laidžios plokštelės tarp kaupiamosios masės - didelis šilumos kaupimo greitis;
• viršutinio kaupiamojo komplekto svoris 70 kg.




Romotop Mammoth 5 akumuliacinių žiedų komplektas HEAT židiniams, 180mm. Prekės kodas: Z9ROM-AKKUMKV05ROMOTOP MAMMOTH akumuliacinių akmenų rinkinys, skirtas židinių ugniakurams, kurių dūmtraukio skersmuo 180 mm.
Ypatumai:
• „Romotop MAMMOTH“ akumuliacinio rinkinio ypatinga šiluminė talpa;
• maksimalus šilumos perdavimas iš išmetamųjų dujų į akumuliaciją;
• šilumos kaupimasis - šildymas net po to, kai ugniakuras baigiamas kūrenti;
• papildyti ar padidinti pastato akumuliacinę galią;
• gamybos metu akumuliaciniai žiedai iškaitinami esant aukštesnei nei 1000°C temperatūrai – sušilę jie neskleidžia blogo kvapo!
• nesudėtingas montavimas;
• specialios šilumai laidžios plokštelės tarp kaupiamosios masės - didelis šilumos kaupimo greitis;
• viršutinio kaupiamojo komplekto svoris 70 kg.






Akumuliacijos komplektas Cara C krosnelei. Prekės kodas: Z9ROM-AKKUMCARA01
Specialus akumuliacinių akmenų komplektas, montuojamas virš pakuros, prie dūmtraukio. Aktyvaus kūrenimo metu dūmų šiluma dūmtraukyje yra kaupiama akumuliaciniuose akmenyse, o ne išleidžiama per kaminą. Baigus kūrenti kurą, ši šiluma iki 5,5 valandų yra spinduliuojama į aplinką.
Šis akumuliacijos komplektas tinka Romotop Cara krosnelėms.




Akumuliacijos komplektas Cara CS krosnelei
Prekės kodas: Z9ROM-AKKUMCARA02 . Specialus akumuliacinių akmenų komplektas, montuojamas virš pakuros, prie dūmtraukio. Aktyvaus kūrenimo metu dūmų šiluma dūmtraukyje yra kaupiama akumuliaciniuose akmenyse, o ne išleidžiama per kaminą. Baigus kūrenti kurą, ši šiluma iki 5,5 valandų yra spinduliuojama į aplinką.
Šis akumuliacijos komplektas tinka Romotop Cara krosnelėms.




Pelenų grotelės su dėže krosnelei Cara
Prekės kodas: Z9ROM-CARAROST01
Grotelės su pelenų dėže, montuojamos degimo kameros apačioje. Sujudinus groteles, pelenai nubyra į pelenų dėžę.




Pelenų grotelės su dėže Romotop židiniams
Prekės kodas: Z9ROM-H3ROST01
Grotelės su pelenų dėže, montuojamos degimo kameros apačioje. Sujudinus groteles, pelenai nubyra į pelenų dėžę.




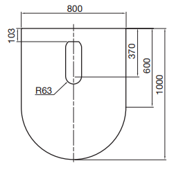
Spartherm La Vela Midi sieninis laikiklis
Prekės kodas: Z9SPA-1045695
Biožidinių Spartherm La Vela Midi sieninis laikiklis.




Rėmas 3 pusių, židiniui HL3LF
Prekės kodas: Z9ROM-RAM11-HL3LF
Židinio apdailos rėmas Romotop ugniakurams HL3LF.
Stiklinis pagrindas C500/600 D
Prekės kodas: Z9NIB-403029
Grotelės su pelenų dėže, montuojamos degimo kameros apačioje. Sujudinus groteles, pelenai nubyra į pelenų dėžę.




Apsauginis stiklas krosnelei Nibe C750
Prekės kodas: Z9NIB-603421
Apsauginis grindų stiklas, idealiai tinkantis krosnelėms Nibe Contura C710, C720T, C750, C750A.




Stiklo plokštė krosnelei C800
Prekės kodas: Z9NIB-603614
Apsauginis stiklas, pagal formą idealiai pritaikytas Contura 800 krosnelėms.
Pagamintas iš 6 mm storio grūdinto stiklo.




Apsauginis stiklas krosnelei Nibe 620/620T/690T
Prekės kodas: Z9NIB-203010
Apsauginis grindų stiklas, idealiai tinkantis krosnelėms Nibe Contura 620, 620T, 690T.









